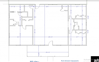
Jackson Model
30′ x 56′ x 9′
1680 Sq. ft (3 Bd 2 Ba)
- The perfect blend of rustic charm and modern comfort, the Jackson is redefining country living. A place where luxury meets simplicity, where every detail is crafted with care and every space is designed with life in mind.
- Enjoy the freedom of a 30x56x9 floor plan that offers an open-concept living area, seamlessly connecting the kitchen, dining, and living spaces. With 3 cozy bedrooms and 2 modern bathrooms, The Jackson is perfectly crafted for family living or hosting guests.
- Embrace the beauty of the outdoors with an 8×30 porch at the front and an impressive 10×56 porch at the back. Whether it is sipping morning coffee or entertaining friends at sunset, these outdoor spaces offer endless possibilities.
- Built on a sturdy monolithic concrete slab, with plumbing integrated within for durability and ease. Walls are meticulously studded 16 inches in the center, while wood trusses are strategically placed 2 feet in the center for unmatched structural integrity.
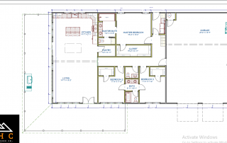
The Lincoln
40′ x 80′ Barndominium
1889 Sq. ft
- Crafted with precision and quality in mind, The Lincoln features a durable monolithic concrete slab foundation, ensuring stability and longevity for years to come.
- With studded walls set 16″ on the center and all interior walls framed out with precision, you can rest assured knowing every detail is meticulously crafted.
- We’ve also included top-notch features such as windows and door installations, along with house wrap on walls and roof, providing added protection and insulation to your haven.
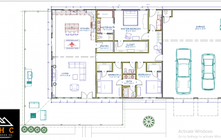
The Lincoln
40′ x 80′ x 10′ Barndominium
2000 Sq. ft
- A stunning 40x80x10 masterpiece offering 2000 sqft of luxurious living space, complemented by a spacious 1200 sqft garage and a convenient 360 sqft attic.
- Crafted with precision and quality in mind, The Lincoln features a durable monolithic concrete slab foundation, ensuring stability and longevity for years to come. With studded walls set 16″ on the center and all interior walls framed-out with precision, you can rest assured knowing every detail is meticulously crafted.
- We’ve included top-notch features such as windows and door installations, along with house wrap on walls and roof, providing added protection and insulation to your haven.
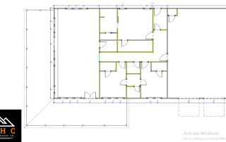
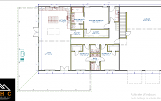
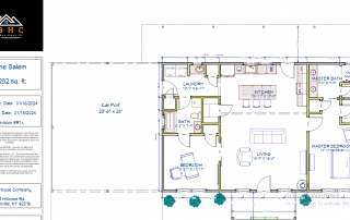
The Salem
1232 sq. ft. (2 Bedroom, 2 Bath)
- The Salem is a stunning 1232 Sq Ft Stud Framed Barndo on a monolithic concrete slab.
- This property includes standard framed-out interior walls and boasts a 40-year warranty on the metal roof and siding, available in 20 colors to suit your preferences.
- The Salem offers the flexibility to be a great country home or a lucrative Airbnb investment, featuring 2 bedrooms and 2 bathrooms.
The Cheyenne
40′ x 100′
2400 Sq. ft
- Spread out and savor every moment with a sprawling 2400 sqft of heated & cooled living space, featuring 3 bedrooms and 2.5 bathrooms.
- Relax and unwind on 10′ wide wrap-around porches, offering the perfect spot to enjoy Temple’s stunning sunsets.
- Let your imagination run wild in a 2000 sqft garage/shop, providing ample space for hobbies, storage, or even a home business.
- Crafted to perfection with 10’ wall height and attention to detail at every turn, our homes are a testament to quality craftsmanship.






































































